Каминная топка Астов ПТ 800

  • Каминная топка Астов ПТ 800

ПОДБОР ПО ПАРАМЕТРАМ


    7 560,66 руб.

    Характеристики

    • Тип остекления: Сквозное
    • Страна производитель: Россия
    • Материал: Сталь
    • Топливо: Дрова
    • Номинальная мощность: 8 кВт
    • Отапливаемая площадь: 80 м²
    • Отапливаемый объем: 200 м³
    • КПД: 75 %
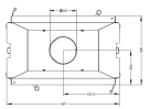
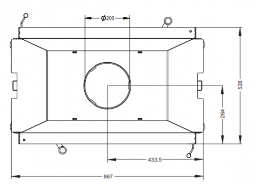
    • Диаметр дымохода: 200 мм
    • Ширина: 942 мм
    • Высота: 867 мм
    • Глубина: 528 мм
    • Вес: 180-220 кг
    • Подключение: Верхнее
    • Система «чистое стекло»: Есть
    • Подвод внешнего воздуха: Есть
    • Вторичный дожиг: Есть
    • Водяной контур: Нет
    • Гильотина (подъем стекла вверх)): Нет
    • Гарантия (лет): 60 месяцев
    • Производитель: ASTOV

    Описание